FOR BUYER

物件情報

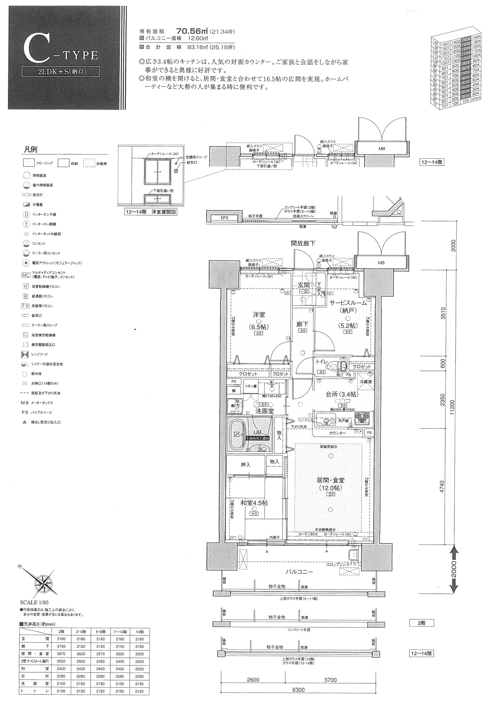
ポレスター三左衛門堀

所在地
姫路市三左衛門堀西の町109番地
交通
JR山陽本線 姫路駅 徒歩約13分
間取り
2SLDK
土地権利
所有権
地目
宅地
駐車場
1住戸1台
現況
空家
引渡日
相談
接道状況
北側・南側に接道
設備
床暖房・浴室乾燥機
専有面積
66.62㎡(内法)
バルコニー
南西
築年月
平成22年1月
構造
鉄筋コンクリート造陸屋根14階建
POINT
高層階・室内綺麗

この物件について問い合わせる

    お名前(必須)

    メールアドレス(必須)

    題名

    お問い合わせ内容

    お問い合わせ

    CONTACT

    ご不明点、ご質問等ございましたら
    お気軽にご相談ください。

    お問い合わせフォームはこちら